HAUSU+ is a design-led architectural practice operating across London, Essex, and the South East, specialising in high-quality residential projects and small-scale developments. Led by Aaron Reed, an ARB-registered architect with nearly a decade of experience, the practice combines considered design thinking with a strong emphasis on buildability and planning success. HAUSU+ works closely with clients to develop clear, practical solutions, guiding each project from initial concept through to technical design with a focus on quality, clarity, and deliverable outcomes.
Our Services
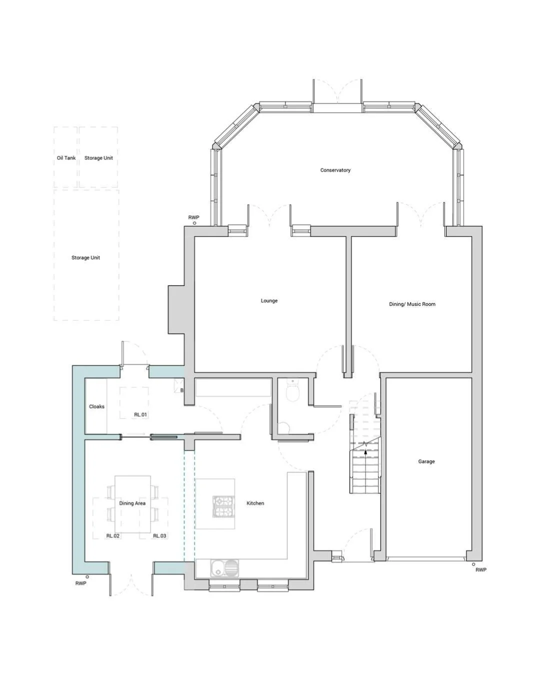
Measured Survey and Existing Drawings
Accurate existing information is the foundation of every successful project. We carry out or coordinate detailed measured surveys and produce clear existing drawings, including plans, elevations, and sections, providing a reliable base for all design and planning work.
Pre-Application and Planning Services
We develop design proposals tailored to your brief and guide you through the planning process. This includes feasibility studies, pre-application advice, and full planning submissions, with a focus on achieving approval through well-considered, policy-aware design.
Construction Drawings Package
We produce detailed technical drawings suitable for Building Control approval and construction. These packages include plans, sections, elevations, and key construction information to ensure your project is clearly defined, buildable, and ready for site.
Design & Project Guidance
We provide a clear, ongoing guidance throughout the design process, helping you make informed decisions at every stage. From initial ideas through to planning outcomes, we ensure the project remains aligned with your goals, budget, and practical constraints.
Contact Us
If you’re planning a project and unsure where to start, share a few details below and we’ll guide you through the next steps.

